Geniet van uw tuin met deze nieuwe blokhut met vloer, slaapzolder en trap!
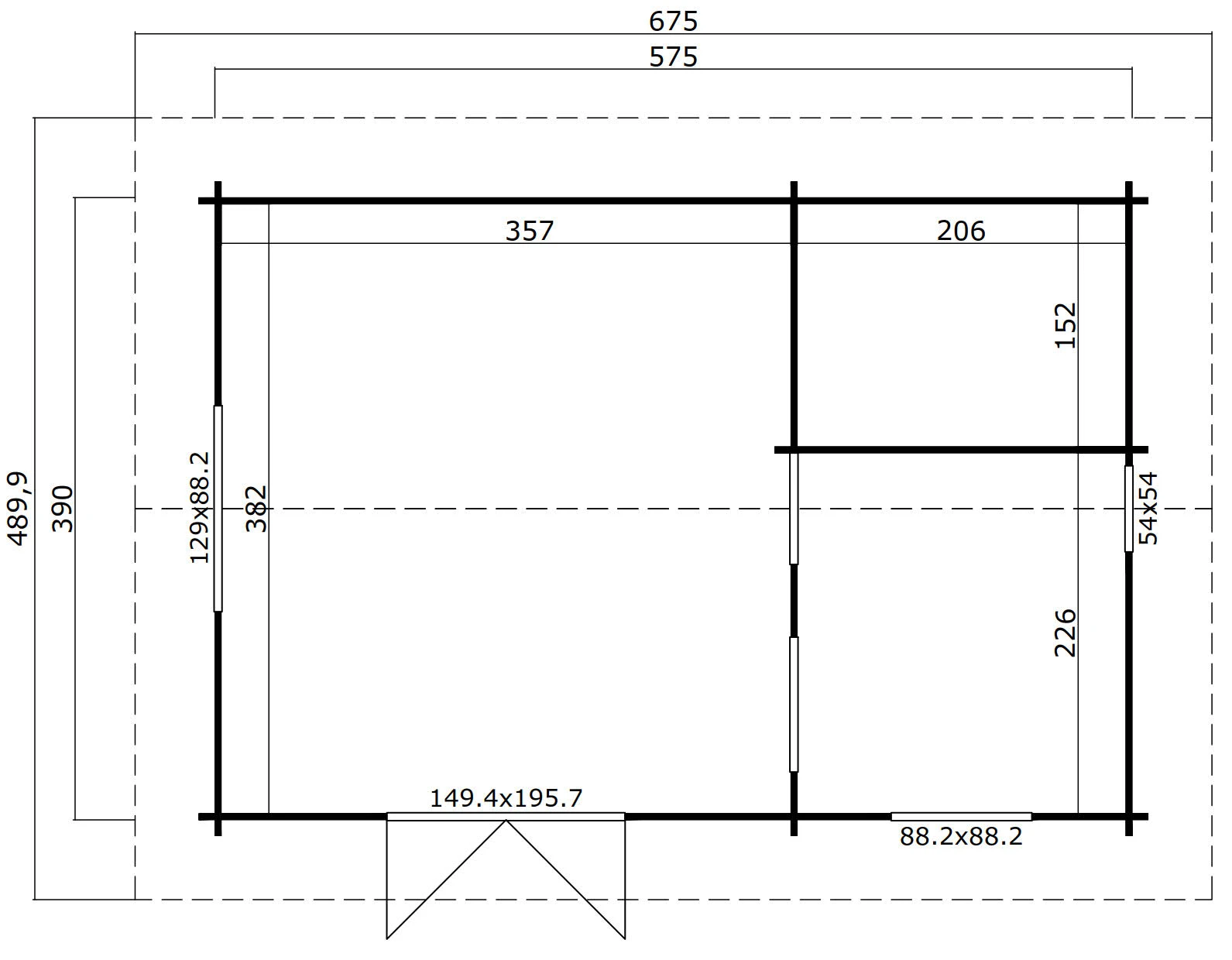
Outdoor Life | Blokhut Caroline | Blank | 575 x 390 cm
De Blokhut Caroline 575x390 Onbehandeld vuren van Outdoor Life Products is een praktische en een zeer royale blokhut met een traditionele look. Deze blokhut is uitgevoerd met een brede dubbele houten deur en een enkele deur. Het tuinhuis is bijzonder geschikt als garage, hobbyruimte of bergruimte voor bijvoorbeeld fietsen of tuingereedschap. De blokhut is op de begane grond verdeeld in 3 verblijfsruimtes en voorzien van een slaapzolder met trap. De enkele deur die meegeleverd wordt is naar wens in te bouwen.
De hoge deuren met lage dorpel maken het gemakkelijk om spullen, zoals bijvoorbeeld een fiets, in het tuinhuis te plaatsen. De latten voor de 6-vlaks raamverdeling op de ruit in de deur worden los meegeleverd. Dit tuinhuis heeft een draai-kiep raam en opent naar binnen toe kantelend of draaiend.
De traditionele stapelbouwwijze met de massieve 40mm dikke wandbalken maakt de montage van dit tuinhuis relatief gemakkelijk en prima te doen voor de gemiddelde klusser. Deze blokhut wordt geleverd zonder dakbedekking. Hiervoor zijn dakshingels in kleur naar keuze beschikbaar.
Alle aangegeven maatvoeringen zijn circa maten.